Shop 1/11 Natinal Park Street, Newcastle West
Offices
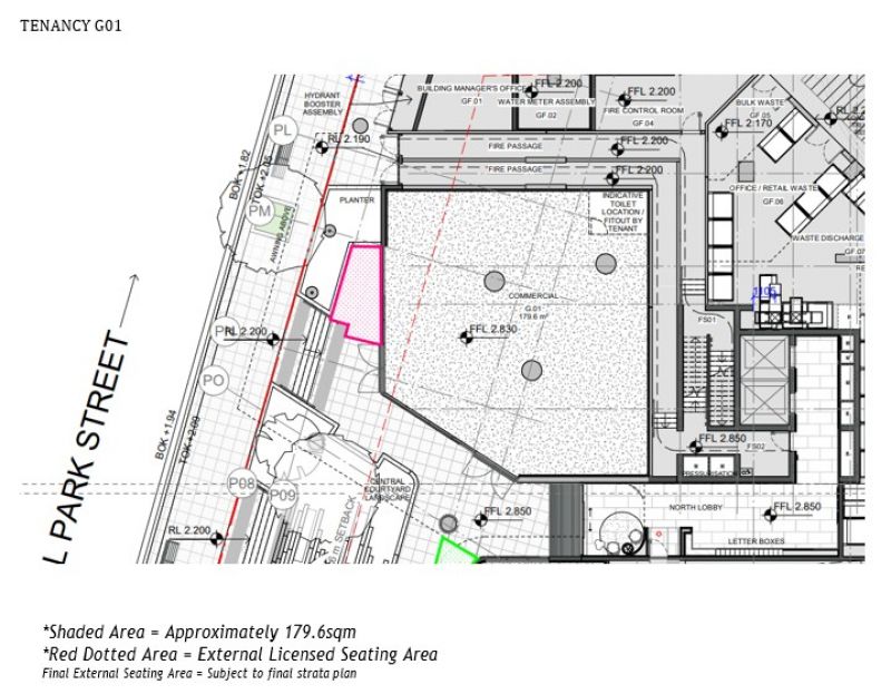
Prime 180sqm Retail or Office space in Brand New ONE development
Position yourself within ONE, the area’s newest mixed-use development offering premium exposure and cutting-edge design.
This 180sqm retail or office tenancy features impressive dual-height ceilings, abundant natural light, and a landscaped frontage onto National Park Street — providing an exceptional and flexible canvas for businesses seeking a statement location.
Property Highlights:
* 180sqm ground floor tenancy with flexible layout – ideal for retail, hospitality, or office use
* Outdoor Licensed Area for alfresco seating
* Cold shell delivery – ready for a tailored fitout
* Striking dual-height ceilings creating volume and natural lighting
* Positioned within the high-profile ONE development underneath 196 new apartments.
* Excellent window signage potential and customer visibility
* Easy access with on-site parking and surrounding amenity
Would suit a range of uses: boutique retail, wellness, creative studio, professional services, or destination hospitality (STCA).
Now leasing – enquire today to secure your space in ONE.
For further information, contact Katrina Karmas at GWH/RE
This 180sqm retail or office tenancy features impressive dual-height ceilings, abundant natural light, and a landscaped frontage onto National Park Street — providing an exceptional and flexible canvas for businesses seeking a statement location.
Property Highlights:
* 180sqm ground floor tenancy with flexible layout – ideal for retail, hospitality, or office use
* Outdoor Licensed Area for alfresco seating
* Cold shell delivery – ready for a tailored fitout
* Striking dual-height ceilings creating volume and natural lighting
* Positioned within the high-profile ONE development underneath 196 new apartments.
* Excellent window signage potential and customer visibility
* Easy access with on-site parking and surrounding amenity
Would suit a range of uses: boutique retail, wellness, creative studio, professional services, or destination hospitality (STCA).
Now leasing – enquire today to secure your space in ONE.
For further information, contact Katrina Karmas at GWH/RE
Similar Properties
No similar properties found
